1/2 pok. 3 m wys. Waszyngtona 132 Kamienica 1935r

Mieszkanie na sprzedaż
665 000,00 PLN , Pow. 34,71 m2
Drukuj ofertę
Drukuj ofertę
Typ nieruchomości:
Mieszkanie
Powierzchnia:
34,71 m2
Typ transakcji:
sprzedaż
Liczba pokoi:
1
Lokalizacja:
Warszawa Praga-Południe , Aleja Jerzego Waszyngtona
Rok budowy:
1935
Piętro:
2 na 6
Numer oferty:
182219
Cena za m2:
19 158,74 PLN
Uno Properties przedstawia:
34,71 m2, balkon z pięknymi 3 skrzydłowymi drzwiami wyjściowymi, ciche, 3 metry wysokości, 1935 rok. Waszyngtona 132 

To wnętrze ma wszystko, co tworzy klimat: wysokość, światło, proporcje i balkon, który może stać się naturalnym przedłużeniem salonu.
Atuty : 
- Kamienica z 1935 roku, po remoncie elewacji, Cisza ! mieszkanie od dziedzińca, strona wschodnio- południowa. 
- Nowa winda 
- Park Skaryszewski 5 minut ! 
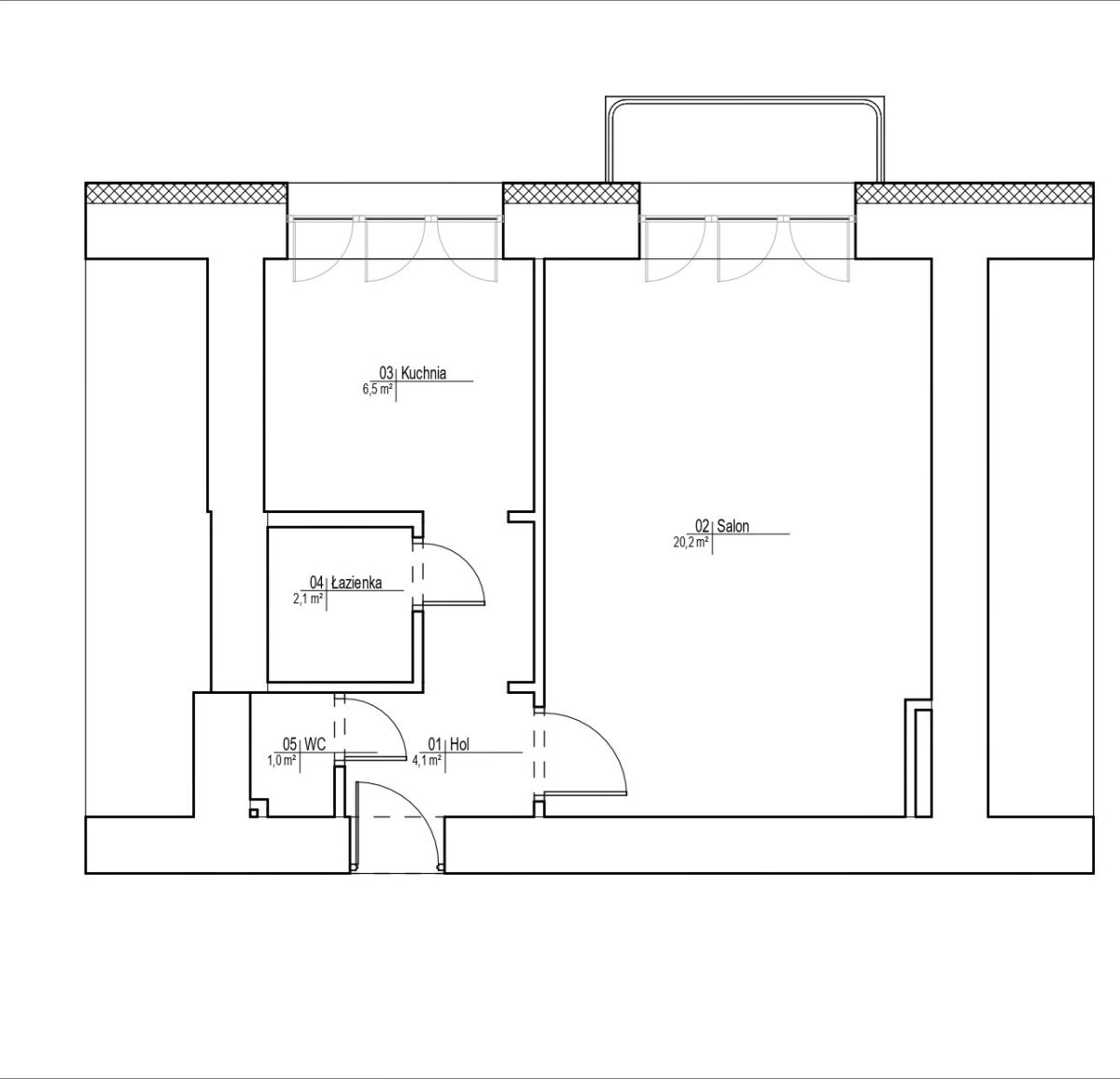
- do remontu lub posiadamy projekty na zrobienie 2 pokoi, remontuj sam lub ze sprawdzoną ekipą. 
- 3 metry wysokości 
- balkon z pięknymi 3 skrzydłowymi wyjściowymi drzwiami 
- idealne pod wynajem, KW , zakup możliwy na kredyt 

Potencjał aranżacyjny
Obecny układ 1-pokojowy daje możliwość stworzenia salonu z aneksem kuchennym i wyjściem na balkon, oddzielnej sypialni, funkcjonalnej łazienki z miejscem na pralkę i zabudowę.

Wysokość 3 m pozwala zastosować wysokie drzwi, sztukaterię, zabudowy stolarskie pod sufit lub klasyczną jodełkę - mieszkanie może zyskać prawdziwie paryski charakter.

 Lokalizacja - miejsko i zielono: 
- Blisko Park Skaryszewski im. Ignacego Jana Paderewskiego - jeden z najpiękniejszych parków w Warszawie.
-  W pobliżu Stadion Narodowy I Stacja metra 
- Przy budynku liczne linie tramwajowe: 3, 6, 9, 22, 24, 26 oraz autobusy - szybki, wygodny dojazd do centrum.
- Niedaleko Ronda Wiatraczna i  Saskiej Kępa.
W okolicy restauracje, kawiarnie, piekarnie, galerie handlowe i pełna infrastruktura usługowa.

Dla kogo?
To idealna propozycja dla:
• singla lub pary ceniących klimat przedwojennej kamienicy, wysokość i światło,
• inwestora szukającego mieszkania z potencjałem aranżacyjnym w stabilnej lokalizacji,
• osoby, która chce stworzyć wnętrze „od zera” według własnego stylu.
Mieszkanie ma duży potencjał - zarówno jako komfortowe lokum, jak i inwestycja pod wynajem.
Zapraszam do kontaktu w celu uzyskania szczegółowych informacji oraz umówienia prezentacji.



,,Właścicielem niniejszego ogłoszenia oraz jego elementów jest Uno Properties Sp. z o.o. lub podmioty współpracujące. Wszelkie prawa zastrzeżone. Zabrania się kopiowania, rozpowszechniania oraz wykorzystywania tych materiałów w sposób wykraczający poza dozwolony użytek określony w ustawie z dnia 4 lutego 1994 r. o prawie autorskim i prawach pokrewnych (Dz. U. 1994, nr 24, poz. 83 z późn. zm.) bez uprzedniej, pisemnej zgody Uno Properties Sp. z o.o. lub jej partnerów. Naruszenie tych zasad może skutkować odpowiedzialnością cywilną i karną.

Ponadto, niniejsze materiały stanowią tajemnicę przedsiębiorstwa Uno Properties Sp. z o.o. oraz jej partnerów w rozumieniu ustawy z dnia 16 kwietnia 1993 r. o zwalczaniu nieuczciwej konkurencji (Dz. U. z 2003 r., Nr 153, poz. 1503 z późn. zm.).
Informacje zawarte w ogłoszeniu mają charakter wyłącznie informacyjny i nie stanowią oferty w rozumieniu Kodeksu Cywilnego.''
Adres strony www: https://www.unoproperties.pl
Nieprawidłowy adres E-mail